Stop dreaming, start packing. Move in today!

Available Now

Lexington

Lexington

  380 Large Mouth Lane, Clarksville, VA 23927

$365,000

 - Ready Now!

3 Beds
2.5 Baths
1 Car Garage
1,575 SqFt
Primary Suite On Main

Request Info

Want to see it for yourself? Contact us for a guided tour.

    This brand-new, two-story home, crafted by Lifestyle Home Builders, offers approximately 1,575 square feet of traditional design with modern, high-end finishes. The exterior showcases a timeless combination of block and vinyl siding, complemented by a convenient one-car garage. Inside, you’ll find wall-to-wall carpet in the bedrooms and hard-surface flooring throughout the remaining parts of the home, and tile flooring in the primary bath and vinyl in the mudroom and 2nd bathroom, designed for both comfort and style.

    Nestled on 1.36 acres in Virginia’s only lakefront town, this home is just steps away from Kerr Lake, with a community dock and lake access for your enjoyment. Although not directly lakefront, you’ll enjoy all the benefits of lakeside living in a peaceful, well-maintained neighborhood. The property is just minutes from Woodbine Vineyards, where you can rest and relax with your family and friends after a day on the lake.

    Mecklenburg

    • Clarksville Elementary
    • Mecklenburg County Middle
    • Mecklenburg County High

    Bluestone Forest

    380 Large Mouth Lane, Clarksville, VA 23927

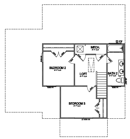
    Floor Plan

    Other Available Homes

    Primary Suite On Main

    Lexington

     
    7955 Lyndale Drive, North Chesterfield, VA 23235
    3 Beds
    2.5 Baths
    1,591 SqFt
    $409,950
    Available
    View Home

    Request Information

      Ready to Talk?

      Our New Home Specialists are here to help!

      Get in Touch:   Call   Text   Email

      Leave a Message

        Contact Us

          Do you agree to Opt-In to Text Communication?* (required)
          YesNo

          What are your remodeling needs?*