Stop dreaming, start packing. Move in today!

Available Now

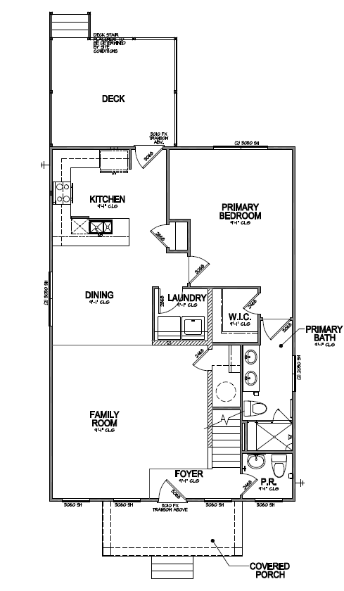
Lexington

Lexington

  7955 Lyndale Drive, North Chesterfield, VA 23235

$409,950

 - Ready Now!

3 Beds
2.5 Baths
1,591 SqFt
Primary Suite On Main

Request Info

Want to see it for yourself? Contact us for a guided tour.

    Chesterfield County

    • Jacobs Road Elementary
    • Manchester Middle
    • Clover Hill High

    Wyntrebrooke Village

    8601 Lyndale Drive, Chesterfield, VA 23235

    Floor Plan

    Other Available Homes

    Primary Suite On Main

    Lexington

     
    380 Large Mouth Lane, Clarksville, VA 23927
    3 Beds
    2.5 Baths
    1 Car Garage
    1,575 SqFt
    $365,000
    Available
    View Home

    Request Information

      Ready to Talk?

      Our New Home Specialists are here to help!

      Get in Touch:   Call   Text   Email

      Leave a Message

        Contact Us

          Do you agree to Opt-In to Text Communication?* (required)
          YesNo

          What are your remodeling needs?*